



GELA (CL)
HOLLYWOOD MULTICINEMA
2013
In un territorio fortemente urbanizzato ma completamente privo di Cinema il progetto di recupero e ristrutturazione del vecchio cinema Royal restituisce alla città uno spazio per lo spettacolo e l'intrattenimento di grande impatto.
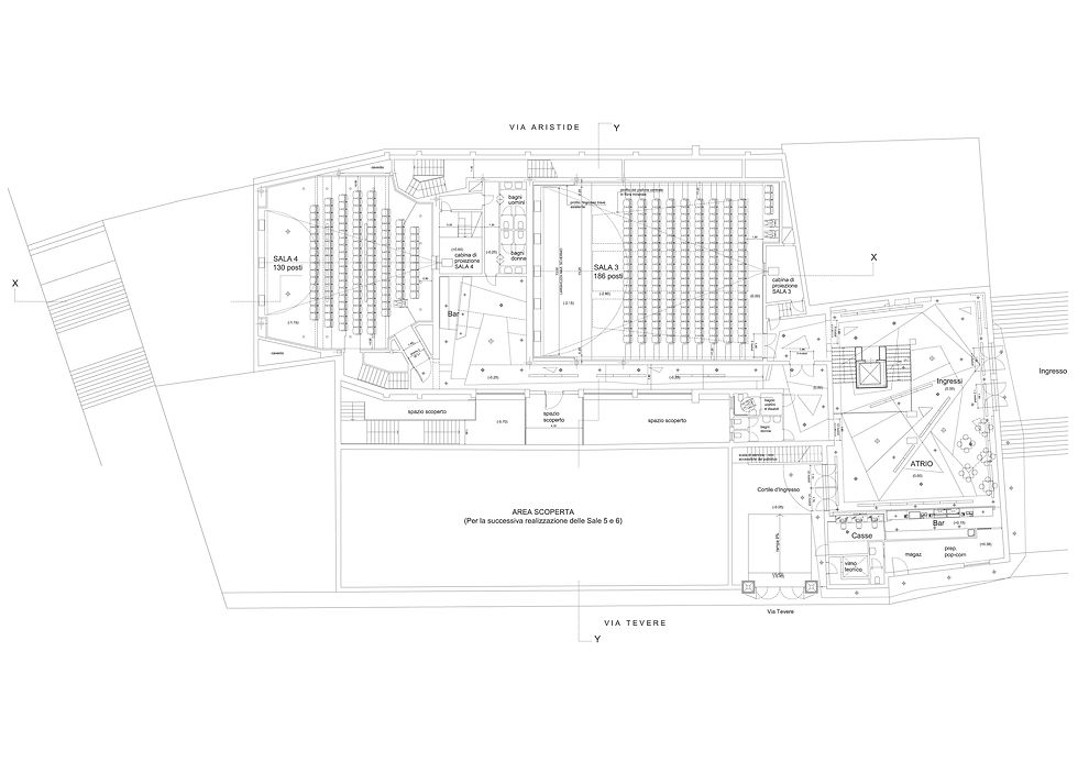
L'intervento prevedeva il recupero di un vecchio cinema degli anni '50 ormai dismesso da molto tempo, caratterizzato dal grande invaso della Sala ma anche da una quasi totale irriconoscibilità nel tessuto urbano.
Partendo da questi dati e da una generale complessità di gestione del cantiere nel contesto edilizio, si è tentato in primo luogo di restituire una immagine accattivante e di grande impatto al'esterno del Cinema, ma anche di realizzare all'interno del grande involucro esistente una suddivisione funzionale in 4 Sale cinematografiche per una capienza complessiva di circa 800 posti.
L'allestimento dei locali è caratterizzato dal continuo tentativo di alterare la percezione dello spazio mediante il taglio e la rotazione di piani e superfici materiche, dalla hall di ingresso attraverso tutti i percorsi distributivi alle Sale cinematografiche, alla costante ricerca di una diversa dimensione da dedicare allo spettatore.
​
Progetto architettonico: Studio Pierluigi Celata Architetto - Roma
D.L. e Sicurezza: O. Cauchi e A. Buccheri Architetti - Gela (CL)
​​